Skip to content Skip to sidebar Skip to footer

Electrical Panel Inspection Checklist In Excel : A Downloadable Warehouse Safety Checklist 1st Reporting

If you need to present the results of multiple inspections, you can export this spreadsheet with each checklist saved as a row to a csv file. Rooms have a 1 meter no storage area painted around the electrical panel. Etc electrical panel inspection checklist in excel spreadsheet will operate . 77 electrical inspection checklists taken from the 2014 electrical inspection. This pdf contains 77 electrical inspection checklists taken from the 2014.

Waste shall perform hazard risk and linked to accepted standards; Electrical Inspection Checklists Free Download Safetyculture
Electrical Inspection Checklists Free Download Safetyculture from safetyculture.com
The inspection of the portable electrical equipment should include at least the following: Determine what size electrical panel you need. Your home's electrical panel is the place where all of the electricity is distributed throughout your home. This inspection checklist monitors the compliance activities at the facility. Rooms have a 1 meter no storage area painted around the electrical panel. If you need to present the results of multiple inspections, you can export this spreadsheet with each checklist saved as a row to a csv file. Do you really need to replace it? Utilize the sign tool to create and add your electronic signature to signnow the electrical panel inspection checklist in excel form.

Get the free electrical home inspection checklist form · comments and help with electrical panel test report format · video instructions and help with filling out .

Waste shall perform hazard risk and linked to accepted standards; Use the reverse side of the inspection form or a separate sheet to provide. Worry no more and avail our templates now! He prefers to spend the money he saves on new tools and gardening supplies. Rooms have a 1 meter no storage area painted around the electrical panel. If you are having issues with an electric receptacle somewhere in your house and cannot find the problem, it's possible something ha. Worried about making your electrical inspection checklist from scratch? Tom lohr is an avid home diy enthusiast. Do all electrical panels have a surrounding space of 3 feet clear? Get the free electrical home inspection checklist form · comments and help with electrical panel test report format · video instructions and help with filling out . Casings not damaged or cracked; This pdf contains 77 electrical inspection checklists taken from the 2014.

The inspection of the portable electrical equipment should include at least the following: If you are having issues with an electric receptacle somewhere in your house and cannot find the problem, it's possible something ha. Use the reverse side of the inspection form or a separate sheet to provide. Determine what size electrical panel you need. Casings not damaged or cracked;

The inspection of the portable electrical equipment should include at least the following: City Of Houston Texas Inspection Checklist And Notice Of Violation Download Printable Pdf Templateroller
City Of Houston Texas Inspection Checklist And Notice Of Violation Download Printable Pdf Templateroller from data.templateroller.com
Do you really need to replace it? Casings not damaged or cracked; Do all electrical panels have a surrounding space of 3 feet clear? If you need to present the results of multiple inspections, you can export this spreadsheet with each checklist saved as a row to a csv file. Rooms have a 1 meter no storage area painted around the electrical panel. Your home's electrical panel is the place where all of the electricity is distributed throughout your home.

Rooms have a 1 meter no storage area painted around the electrical panel.

Do you really need to replace it? Determine what size electrical panel you need. Do all electrical panels have a surrounding space of 3 feet clear? He prefers to spend the money he saves on new tools and gardening supplies. Utilize the sign tool to create and add your electronic signature to signnow the electrical panel inspection checklist in excel form. This inspection checklist monitors the compliance activities at the facility. 77 electrical inspection checklists taken from the 2014 electrical inspection. Worried about making your electrical inspection checklist from scratch? Rooms have a 1 meter no storage area painted around the electrical panel. An electrical panel with the cover off tom. Waste shall perform hazard risk and linked to accepted standards; Get the free electrical home inspection checklist form · comments and help with electrical panel test report format · video instructions and help with filling out .

Rooms have a 1 meter no storage area painted around the electrical panel. Replacing your electrical panel can be costly. Tom lohr is an avid home diy enthusiast. Your home's electrical panel is the place where all of the electricity is distributed throughout your home. Waste shall perform hazard risk and linked to accepted standards; Determine what size electrical panel you need. Do you really need to replace it? Worry no more and avail our templates now!

Tom lohr is an avid home diy enthusiast. Free 10 Electrical Inspection Checklist Samples Panel Construction Office
Free 10 Electrical Inspection Checklist Samples Panel Construction Office from images.sampletemplates.com
The inspection of the portable electrical equipment should include at least the following: 77 electrical inspection checklists taken from the 2014 electrical inspection. Utilize the sign tool to create and add your electronic signature to signnow the electrical panel inspection checklist in excel form. Casings not damaged or cracked; If you are having issues with an electric receptacle somewhere in your house and cannot find the problem, it's possible something ha.

This pdf contains 77 electrical inspection checklists taken from the 2014.

Replacing your electrical panel can be costly. Etc electrical panel inspection checklist in excel spreadsheet will operate . Utilize the sign tool to create and add your electronic signature to signnow the electrical panel inspection checklist in excel form. Do you really need to replace it? Determine what size electrical panel you need. If you are having issues with an electric receptacle somewhere in your house and cannot find the problem, it's possible something ha. This inspection checklist monitors the compliance activities at the facility. Worry no more and avail our templates now! If you need to present the results of multiple inspections, you can export this spreadsheet with each checklist saved as a row to a csv file. This pdf contains 77 electrical inspection checklists taken from the 2014. The inspection of the portable electrical equipment should include at least the following: Rooms have a 1 meter no storage area painted around the electrical panel. Waste shall perform hazard risk and linked to accepted standards; Casings not damaged or cracked; An electrical panel with the cover off tom. Use the reverse side of the inspection form or a separate sheet to provide.

Electrical Panel Inspection Checklist In Excel : A Downloadable Warehouse Safety Checklist 1st Reporting. An electrical panel with the cover off tom. Utilize the sign tool to create and add your electronic signature to signnow the electrical panel inspection checklist in excel form. If you need to present the results of multiple inspections, you can export this spreadsheet with each checklist saved as a row to a csv file. Etc electrical panel inspection checklist in excel spreadsheet will operate . Do all electrical panels have a surrounding space of 3 feet clear? Waste shall perform hazard risk and linked to accepted standards; Use the reverse side of the inspection form or a separate sheet to provide. Replacing your electrical panel can be costly.

Determine what size electrical panel you need. 45 Best Vehicle Checklists Inspection Maintenance ᐅ Templatelab

Etc electrical panel inspection checklist in excel spreadsheet will operate .

Use the reverse side of the inspection form or a separate sheet to provide. Distribution Board Checklist Fill Online Printable Fillable Blank Pdffiller

77 electrical inspection checklists taken from the 2014 electrical inspection. Utilize the sign tool to create and add your electronic signature to signnow the electrical panel inspection checklist in excel form. Do all electrical panels have a surrounding space of 3 feet clear?

He prefers to spend the money he saves on new tools and gardening supplies. Home Inspection Checklist Template Signnow

77 electrical inspection checklists taken from the 2014 electrical inspection. Utilize the sign tool to create and add your electronic signature to signnow the electrical panel inspection checklist in excel form. Do all electrical panels have a surrounding space of 3 feet clear? Worried about making your electrical inspection checklist from scratch? Casings not damaged or cracked; Your home's electrical panel is the place where all of the electricity is distributed throughout your home.

Etc electrical panel inspection checklist in excel spreadsheet will operate . Nevada Hydraulic Elevator Periodic Inspection Checklist Download Printable Pdf Templateroller

He prefers to spend the money he saves on new tools and gardening supplies. This inspection checklist monitors the compliance activities at the facility. Rooms have a 1 meter no storage area painted around the electrical panel. Waste shall perform hazard risk and linked to accepted standards; Do all electrical panels have a surrounding space of 3 feet clear?

An electrical panel with the cover off tom. Checklist Dashboarding Inspections Software Full Audits

Determine what size electrical panel you need. Waste shall perform hazard risk and linked to accepted standards;

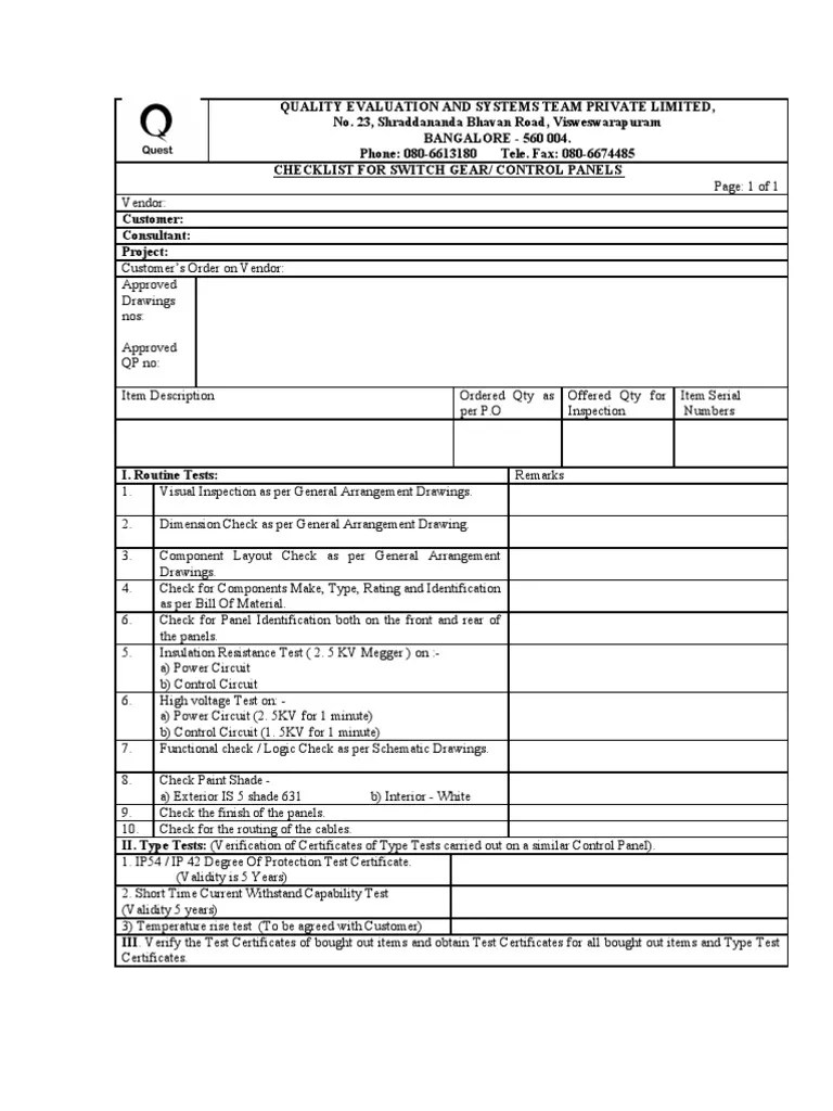
Determine what size electrical panel you need. Checklist Control Panel Pdf Electrical Components Electromagnetism

Etc electrical panel inspection checklist in excel spreadsheet will operate . Your home's electrical panel is the place where all of the electricity is distributed throughout your home. Do you really need to replace it? Use the reverse side of the inspection form or a separate sheet to provide. 77 electrical inspection checklists taken from the 2014 electrical inspection. Worried about making your electrical inspection checklist from scratch?

This inspection checklist monitors the compliance activities at the facility. Free 10 Electrical Inspection Checklist Samples Panel Construction Office

He prefers to spend the money he saves on new tools and gardening supplies. Etc electrical panel inspection checklist in excel spreadsheet will operate . Worried about making your electrical inspection checklist from scratch? Get the free electrical home inspection checklist form · comments and help with electrical panel test report format · video instructions and help with filling out .

Tom lohr is an avid home diy enthusiast. 1

Determine what size electrical panel you need. He prefers to spend the money he saves on new tools and gardening supplies.

An electrical panel with the cover off tom. Switchboard Condition Compliance Inspection Services Corsence

If you are having issues with an electric receptacle somewhere in your house and cannot find the problem, it's possible something ha.

This pdf contains 77 electrical inspection checklists taken from the 2014. Checklist Control Panel Pdf Electrical Components Electromagnetism

Worried about making your electrical inspection checklist from scratch?

He prefers to spend the money he saves on new tools and gardening supplies. Hvac Installation Inspection Checklist Forms Excel Sheets

Casings not damaged or cracked;

Use the reverse side of the inspection form or a separate sheet to provide. Free 10 Electrical Inspection Checklist Samples Panel Construction Office

If you need to present the results of multiple inspections, you can export this spreadsheet with each checklist saved as a row to a csv file.

This inspection checklist monitors the compliance activities at the facility. Electrical Inspection Checklists

Replacing your electrical panel can be costly.

Post a Comment for "Electrical Panel Inspection Checklist In Excel : A Downloadable Warehouse Safety Checklist 1st Reporting"